<?xml version="1.0" encoding="UTF-8"?><rss version="2.0"
	xmlns:content="http://purl.org/rss/1.0/modules/content/"
	xmlns:wfw="http://wellformedweb.org/CommentAPI/"
	xmlns:dc="http://purl.org/dc/elements/1.1/"
	xmlns:atom="http://www.w3.org/2005/Atom"
	xmlns:sy="http://purl.org/rss/1.0/modules/syndication/"
	xmlns:slash="http://purl.org/rss/1.0/modules/slash/"
	>

<channel>
	<title>Comercial Archives | darro18 arquitectos</title>
	<atom:link href="https://darro18.com/es/portfolio_category/comercial/feed/" rel="self" type="application/rss+xml" />
	<link>https://darro18.com/es/portfolio_category/comercial/</link>
	<description></description>
	<lastBuildDate>Sun, 14 Apr 2024 13:29:11 +0000</lastBuildDate>
	<language>es</language>
	<sy:updatePeriod>
	hourly	</sy:updatePeriod>
	<sy:updateFrequency>
	1	</sy:updateFrequency>
	
	<item>
		<title>Le Labo</title>
		<link>https://darro18.com/es/portfolio/le-labo/</link>
		
		<dc:creator><![CDATA[admin9493]]></dc:creator>
		<pubDate>Thu, 16 Jul 2020 18:21:46 +0000</pubDate>
				<guid isPermaLink="false">https://darro18.com/?post_type=mies_portfolio&#038;p=2183</guid>

					<description><![CDATA[<p>Project Abstract La primera tienda de LE LABO (de la marca Estée Lauder) en España se ubica en la Calle Fernando VI en el barrio de moda Chueca, en el centro de Madrid. Adaptándose tanto a la Normativa Municipal como a las exigencias/requerimientos de la marca, el proyecto aprovecha al máximo el espacio existente, siguiendo..</p>
<p>The post <a href="https://darro18.com/es/portfolio/le-labo/">Le Labo</a> appeared first on <a href="https://darro18.com/es">darro18 arquitectos</a>.</p>
]]></description>
										<content:encoded><![CDATA[<h3 style="text-align: center;">Project Abstract</h3>
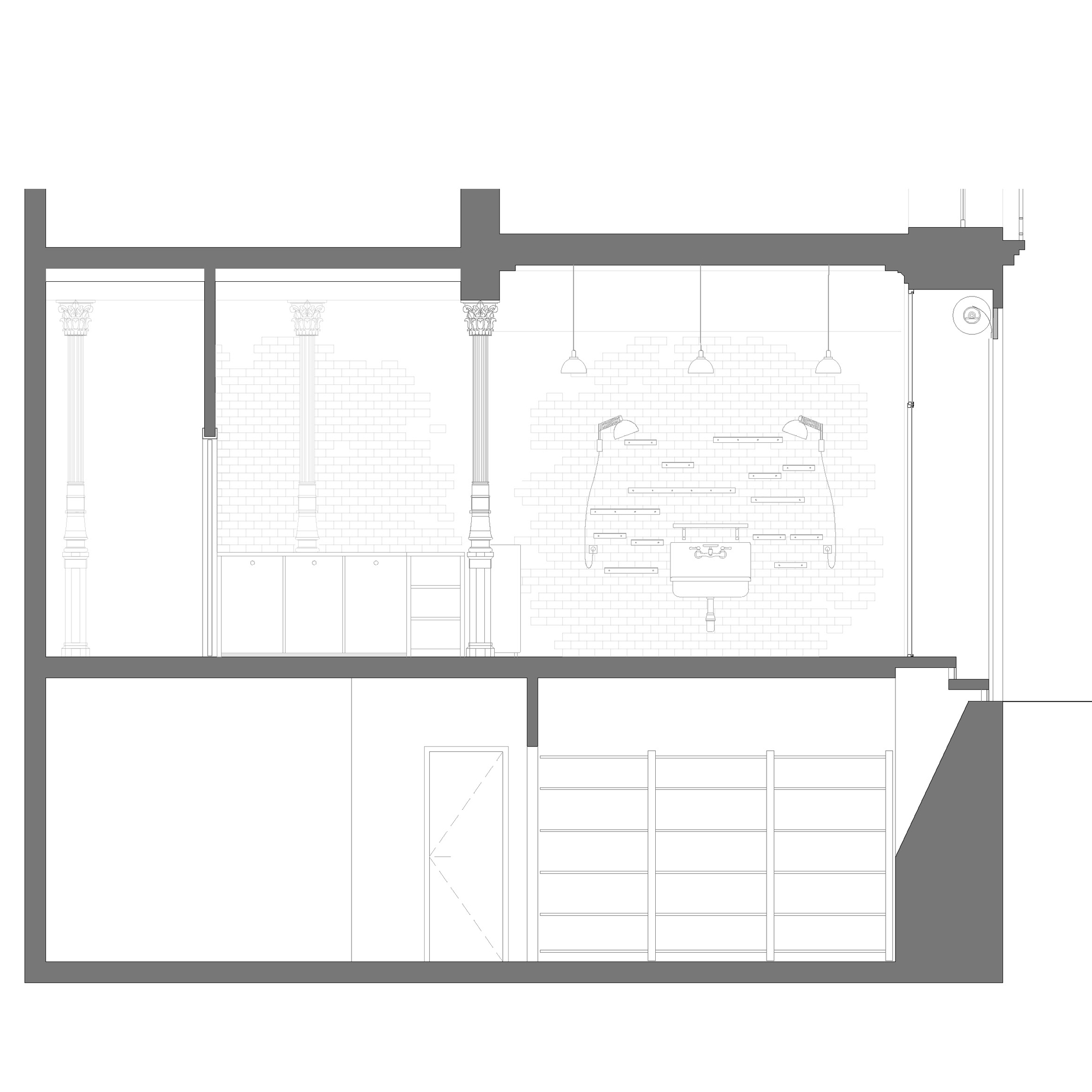
<p class="intro narrow not-big" style="text-align: center;"><span style="font-size: 12pt;">La primera tienda de LE LABO (de la marca Estée Lauder) en España se ubica en la Calle Fernando VI en el barrio de moda Chueca, en el centro de Madrid. Adaptándose tanto a la Normativa Municipal como a las exigencias/requerimientos de la marca, el proyecto aprovecha al máximo el espacio existente, siguiendo el concepto de diseño de la marca.</span></p>
<div class="separator">
<h3>Galería</h3>
</div>

<a data-title="le_labo-1" data-alt=""data-video_autoplay="off"href='https://darro18.com/es/le_labo-1-2/'><img fetchpriority="high" decoding="async" width="385" height="385" src="https://darro18.com/wp-content/uploads/2020/07/le_labo-1-385x385.jpg" class="attachment-small-size-hard size-small-size-hard" alt="" srcset="https://darro18.com/wp-content/uploads/2020/07/le_labo-1-385x385.jpg 385w, https://darro18.com/wp-content/uploads/2020/07/le_labo-1-150x150.jpg 150w" sizes="(max-width: 385px) 100vw, 385px" /></a>
<a data-title="le_labo-3" data-alt=""data-video_autoplay="off"href='https://darro18.com/es/le_labo-3-2/'><img decoding="async" width="385" height="385" src="https://darro18.com/wp-content/uploads/2020/07/le_labo-3-385x385.jpg" class="attachment-small-size-hard size-small-size-hard" alt="" srcset="https://darro18.com/wp-content/uploads/2020/07/le_labo-3-385x385.jpg 385w, https://darro18.com/wp-content/uploads/2020/07/le_labo-3-150x150.jpg 150w" sizes="(max-width: 385px) 100vw, 385px" /></a>
<a data-title="le_labo-4" data-alt=""data-video_autoplay="off"href='https://darro18.com/es/le_labo-4-2/'><img decoding="async" width="385" height="385" src="https://darro18.com/wp-content/uploads/2020/07/le_labo-4-385x385.jpg" class="attachment-small-size-hard size-small-size-hard" alt="" srcset="https://darro18.com/wp-content/uploads/2020/07/le_labo-4-385x385.jpg 385w, https://darro18.com/wp-content/uploads/2020/07/le_labo-4-150x150.jpg 150w" sizes="(max-width: 385px) 100vw, 385px" /></a>
<a data-title="le_labo-5" data-alt=""data-video_autoplay="off"href='https://darro18.com/es/le_labo-5/'><img loading="lazy" decoding="async" width="385" height="385" src="https://darro18.com/wp-content/uploads/2020/07/le_labo-5-385x385.jpg" class="attachment-small-size-hard size-small-size-hard" alt="" srcset="https://darro18.com/wp-content/uploads/2020/07/le_labo-5-385x385.jpg 385w, https://darro18.com/wp-content/uploads/2020/07/le_labo-5-150x150.jpg 150w" sizes="(max-width: 385px) 100vw, 385px" /></a>
<a data-title="le_labo-6" data-alt=""data-video_autoplay="off"href='https://darro18.com/es/le_labo-6-2/'><img loading="lazy" decoding="async" width="385" height="385" src="https://darro18.com/wp-content/uploads/2020/07/le_labo-6-385x385.jpg" class="attachment-small-size-hard size-small-size-hard" alt="" srcset="https://darro18.com/wp-content/uploads/2020/07/le_labo-6-385x385.jpg 385w, https://darro18.com/wp-content/uploads/2020/07/le_labo-6-150x150.jpg 150w" sizes="(max-width: 385px) 100vw, 385px" /></a>
<a data-title="le_labo-7" data-alt=""data-video_autoplay="off"href='https://darro18.com/es/le_labo-7-2/'><img loading="lazy" decoding="async" width="385" height="385" src="https://darro18.com/wp-content/uploads/2020/07/le_labo-7-385x385.jpg" class="attachment-small-size-hard size-small-size-hard" alt="" srcset="https://darro18.com/wp-content/uploads/2020/07/le_labo-7-385x385.jpg 385w, https://darro18.com/wp-content/uploads/2020/07/le_labo-7-150x150.jpg 150w" sizes="(max-width: 385px) 100vw, 385px" /></a>
<a data-title="le_labo-8" data-alt=""data-video_autoplay="off"href='https://darro18.com/es/le_labo-8-2/'><img loading="lazy" decoding="async" width="385" height="385" src="https://darro18.com/wp-content/uploads/2020/07/le_labo-8-385x385.jpg" class="attachment-small-size-hard size-small-size-hard" alt="" srcset="https://darro18.com/wp-content/uploads/2020/07/le_labo-8-385x385.jpg 385w, https://darro18.com/wp-content/uploads/2020/07/le_labo-8-150x150.jpg 150w" sizes="(max-width: 385px) 100vw, 385px" /></a>
<a data-title="le_labo-9" data-alt=""data-video_autoplay="off"href='https://darro18.com/es/le_labo-9-2/'><img loading="lazy" decoding="async" width="385" height="385" src="https://darro18.com/wp-content/uploads/2020/07/le_labo-9-385x385.jpg" class="attachment-small-size-hard size-small-size-hard" alt="" srcset="https://darro18.com/wp-content/uploads/2020/07/le_labo-9-385x385.jpg 385w, https://darro18.com/wp-content/uploads/2020/07/le_labo-9-150x150.jpg 150w" sizes="(max-width: 385px) 100vw, 385px" /></a>
<a data-title="Facade" data-alt=""data-video_autoplay="off"href='https://darro18.com/es/fachada2/'><img loading="lazy" decoding="async" width="385" height="385" src="https://darro18.com/wp-content/uploads/2020/07/fernando_vi-facade-385x385.jpg" class="attachment-small-size-hard size-small-size-hard" alt="" srcset="https://darro18.com/wp-content/uploads/2020/07/fernando_vi-facade-385x385.jpg 385w, https://darro18.com/wp-content/uploads/2020/07/fernando_vi-facade-300x300.jpg 300w, https://darro18.com/wp-content/uploads/2020/07/fernando_vi-facade-1024x1024.jpg 1024w, https://darro18.com/wp-content/uploads/2020/07/fernando_vi-facade-150x150.jpg 150w, https://darro18.com/wp-content/uploads/2020/07/fernando_vi-facade-768x768.jpg 768w, https://darro18.com/wp-content/uploads/2020/07/fernando_vi-facade-1536x1536.jpg 1536w, https://darro18.com/wp-content/uploads/2020/07/fernando_vi-facade-1200x1200.jpg 1200w, https://darro18.com/wp-content/uploads/2020/07/fernando_vi-facade-800x800.jpg 800w, https://darro18.com/wp-content/uploads/2020/07/fernando_vi-facade.jpg 2000w" sizes="(max-width: 385px) 100vw, 385px" /></a>
<a data-title="Floorplan" data-alt=""data-video_autoplay="off"href='https://darro18.com/es/planta_/'><img loading="lazy" decoding="async" width="385" height="385" src="https://darro18.com/wp-content/uploads/2020/07/fernando_vi-floorplan-385x385.jpg" class="attachment-small-size-hard size-small-size-hard" alt="" srcset="https://darro18.com/wp-content/uploads/2020/07/fernando_vi-floorplan-385x385.jpg 385w, https://darro18.com/wp-content/uploads/2020/07/fernando_vi-floorplan-300x300.jpg 300w, https://darro18.com/wp-content/uploads/2020/07/fernando_vi-floorplan-1024x1024.jpg 1024w, https://darro18.com/wp-content/uploads/2020/07/fernando_vi-floorplan-150x150.jpg 150w, https://darro18.com/wp-content/uploads/2020/07/fernando_vi-floorplan-768x768.jpg 768w, https://darro18.com/wp-content/uploads/2020/07/fernando_vi-floorplan-1536x1536.jpg 1536w, https://darro18.com/wp-content/uploads/2020/07/fernando_vi-floorplan-1200x1200.jpg 1200w, https://darro18.com/wp-content/uploads/2020/07/fernando_vi-floorplan-800x800.jpg 800w, https://darro18.com/wp-content/uploads/2020/07/fernando_vi-floorplan.jpg 2000w" sizes="(max-width: 385px) 100vw, 385px" /></a>
<a data-title="Section 1" data-alt=""data-video_autoplay="off"href='https://darro18.com/es/sec-1/'><img loading="lazy" decoding="async" width="385" height="385" src="https://darro18.com/wp-content/uploads/2020/07/fernando_vi-section-1-385x385.jpg" class="attachment-small-size-hard size-small-size-hard" alt="" srcset="https://darro18.com/wp-content/uploads/2020/07/fernando_vi-section-1-385x385.jpg 385w, https://darro18.com/wp-content/uploads/2020/07/fernando_vi-section-1-300x300.jpg 300w, https://darro18.com/wp-content/uploads/2020/07/fernando_vi-section-1-1024x1024.jpg 1024w, https://darro18.com/wp-content/uploads/2020/07/fernando_vi-section-1-150x150.jpg 150w, https://darro18.com/wp-content/uploads/2020/07/fernando_vi-section-1-768x768.jpg 768w, https://darro18.com/wp-content/uploads/2020/07/fernando_vi-section-1-1536x1536.jpg 1536w, https://darro18.com/wp-content/uploads/2020/07/fernando_vi-section-1-1200x1200.jpg 1200w, https://darro18.com/wp-content/uploads/2020/07/fernando_vi-section-1-800x800.jpg 800w, https://darro18.com/wp-content/uploads/2020/07/fernando_vi-section-1.jpg 2000w" sizes="(max-width: 385px) 100vw, 385px" /></a>
<a data-title="Section 2" data-alt=""data-video_autoplay="off"href='https://darro18.com/es/sec-2/'><img loading="lazy" decoding="async" width="385" height="385" src="https://darro18.com/wp-content/uploads/2020/07/fernando_vi-section-2-385x385.jpg" class="attachment-small-size-hard size-small-size-hard" alt="" srcset="https://darro18.com/wp-content/uploads/2020/07/fernando_vi-section-2-385x385.jpg 385w, https://darro18.com/wp-content/uploads/2020/07/fernando_vi-section-2-300x300.jpg 300w, https://darro18.com/wp-content/uploads/2020/07/fernando_vi-section-2-1024x1024.jpg 1024w, https://darro18.com/wp-content/uploads/2020/07/fernando_vi-section-2-150x150.jpg 150w, https://darro18.com/wp-content/uploads/2020/07/fernando_vi-section-2-768x768.jpg 768w, https://darro18.com/wp-content/uploads/2020/07/fernando_vi-section-2-1536x1536.jpg 1536w, https://darro18.com/wp-content/uploads/2020/07/fernando_vi-section-2-1200x1200.jpg 1200w, https://darro18.com/wp-content/uploads/2020/07/fernando_vi-section-2-800x800.jpg 800w, https://darro18.com/wp-content/uploads/2020/07/fernando_vi-section-2.jpg 2000w" sizes="(max-width: 385px) 100vw, 385px" /></a>

<p>The post <a href="https://darro18.com/es/portfolio/le-labo/">Le Labo</a> appeared first on <a href="https://darro18.com/es">darro18 arquitectos</a>.</p>
]]></content:encoded>
					
		
		
			</item>
		<item>
		<title>Velazquez</title>
		<link>https://darro18.com/es/portfolio/vinoteca/</link>
		
		<dc:creator><![CDATA[admin9493]]></dc:creator>
		<pubDate>Thu, 18 Apr 2019 17:10:05 +0000</pubDate>
				<guid isPermaLink="false">https://darro18.com/?post_type=mies_portfolio&#038;p=2125</guid>

					<description><![CDATA[<p>Galería</p>
<p>The post <a href="https://darro18.com/es/portfolio/vinoteca/">Velazquez</a> appeared first on <a href="https://darro18.com/es">darro18 arquitectos</a>.</p>
]]></description>
										<content:encoded><![CDATA[<div class="separator">
<h3>Galería</h3>
</div>

<a data-title="velazquez 1" data-alt=""data-video_autoplay="off"href=''><img loading="lazy" decoding="async" width="385" height="385" src="https://darro18.com/wp-content/uploads/2019/04/velazquez-1-385x385.jpg" class="attachment-small-size-hard size-small-size-hard" alt="" srcset="https://darro18.com/wp-content/uploads/2019/04/velazquez-1-385x385.jpg 385w, https://darro18.com/wp-content/uploads/2019/04/velazquez-1-150x150.jpg 150w" sizes="(max-width: 385px) 100vw, 385px" /></a>
<a data-title="velazquez 2" data-alt=""data-video_autoplay="off"href=''><img loading="lazy" decoding="async" width="385" height="385" src="https://darro18.com/wp-content/uploads/2019/04/velazquez-2-385x385.jpg" class="attachment-small-size-hard size-small-size-hard" alt="" srcset="https://darro18.com/wp-content/uploads/2019/04/velazquez-2-385x385.jpg 385w, https://darro18.com/wp-content/uploads/2019/04/velazquez-2-150x150.jpg 150w" sizes="(max-width: 385px) 100vw, 385px" /></a>
<a data-title="velazquez 3" data-alt=""data-video_autoplay="off"href=''><img loading="lazy" decoding="async" width="385" height="385" src="https://darro18.com/wp-content/uploads/2019/04/velazquez-3-385x385.jpg" class="attachment-small-size-hard size-small-size-hard" alt="" srcset="https://darro18.com/wp-content/uploads/2019/04/velazquez-3-385x385.jpg 385w, https://darro18.com/wp-content/uploads/2019/04/velazquez-3-150x150.jpg 150w" sizes="(max-width: 385px) 100vw, 385px" /></a>
<a data-title="velazquez 4" data-alt=""data-video_autoplay="off"href=''><img loading="lazy" decoding="async" width="385" height="385" src="https://darro18.com/wp-content/uploads/2019/04/velazquez-4-385x385.jpg" class="attachment-small-size-hard size-small-size-hard" alt="" srcset="https://darro18.com/wp-content/uploads/2019/04/velazquez-4-385x385.jpg 385w, https://darro18.com/wp-content/uploads/2019/04/velazquez-4-150x150.jpg 150w" sizes="(max-width: 385px) 100vw, 385px" /></a>
<a data-title="velazquez 5" data-alt=""data-video_autoplay="off"href=''><img loading="lazy" decoding="async" width="385" height="385" src="https://darro18.com/wp-content/uploads/2019/04/velazquez-5-385x385.jpg" class="attachment-small-size-hard size-small-size-hard" alt="" srcset="https://darro18.com/wp-content/uploads/2019/04/velazquez-5-385x385.jpg 385w, https://darro18.com/wp-content/uploads/2019/04/velazquez-5-150x150.jpg 150w" sizes="(max-width: 385px) 100vw, 385px" /></a>
<a data-title="190423-Darro-18-Daniel-Manzano-024" data-alt=""data-video_autoplay="off"href='https://darro18.com/es/190423-darro-18-daniel-manzano-024-2/'><img loading="lazy" decoding="async" width="385" height="385" src="https://darro18.com/wp-content/uploads/2019/07/velazquez-8-385x385.jpg" class="attachment-small-size-hard size-small-size-hard" alt="" srcset="https://darro18.com/wp-content/uploads/2019/07/velazquez-8-385x385.jpg 385w, https://darro18.com/wp-content/uploads/2019/07/velazquez-8-150x150.jpg 150w" sizes="(max-width: 385px) 100vw, 385px" /></a>
<a data-title="190423-Darro-18-Daniel-Manzano-021" data-alt=""data-video_autoplay="off"href='https://darro18.com/es/190423-darro-18-daniel-manzano-021-2/'><img loading="lazy" decoding="async" width="385" height="385" src="https://darro18.com/wp-content/uploads/2019/07/velazquez-7-385x385.jpg" class="attachment-small-size-hard size-small-size-hard" alt="" srcset="https://darro18.com/wp-content/uploads/2019/07/velazquez-7-385x385.jpg 385w, https://darro18.com/wp-content/uploads/2019/07/velazquez-7-150x150.jpg 150w" sizes="(max-width: 385px) 100vw, 385px" /></a>
<a data-title="190423-Darro-18-Daniel-Manzano-017" data-alt=""data-video_autoplay="off"href='https://darro18.com/es/190423-darro-18-daniel-manzano-017-2/'><img loading="lazy" decoding="async" width="385" height="385" src="https://darro18.com/wp-content/uploads/2019/07/velazquez-6-385x385.jpg" class="attachment-small-size-hard size-small-size-hard" alt="" srcset="https://darro18.com/wp-content/uploads/2019/07/velazquez-6-385x385.jpg 385w, https://darro18.com/wp-content/uploads/2019/07/velazquez-6-150x150.jpg 150w" sizes="(max-width: 385px) 100vw, 385px" /></a>
<a data-title="velazquez floorplan" data-alt=""data-video_autoplay="off"href=''><img loading="lazy" decoding="async" width="385" height="321" src="https://darro18.com/wp-content/uploads/2019/04/velazquez-floorplan-385x321.jpg" class="attachment-small-size-hard size-small-size-hard" alt="" /></a>
<a data-title="velazquez section 1" data-alt=""data-video_autoplay="off"href=''><img loading="lazy" decoding="async" width="385" height="385" src="https://darro18.com/wp-content/uploads/2019/04/velazquez-section-1-385x385.jpg" class="attachment-small-size-hard size-small-size-hard" alt="" srcset="https://darro18.com/wp-content/uploads/2019/04/velazquez-section-1-385x385.jpg 385w, https://darro18.com/wp-content/uploads/2019/04/velazquez-section-1-150x150.jpg 150w" sizes="(max-width: 385px) 100vw, 385px" /></a>
<a data-title="velazquez selction 2" data-alt=""data-video_autoplay="off"href=''><img loading="lazy" decoding="async" width="385" height="385" src="https://darro18.com/wp-content/uploads/2019/04/velazquez-selction-2-385x385.jpg" class="attachment-small-size-hard size-small-size-hard" alt="" srcset="https://darro18.com/wp-content/uploads/2019/04/velazquez-selction-2-385x385.jpg 385w, https://darro18.com/wp-content/uploads/2019/04/velazquez-selction-2-150x150.jpg 150w" sizes="(max-width: 385px) 100vw, 385px" /></a>
<a data-title="velazquez axon" data-alt=""data-video_autoplay="off"href=''><img loading="lazy" decoding="async" width="385" height="385" src="https://darro18.com/wp-content/uploads/2019/04/velazquez-axon-385x385.jpg" class="attachment-small-size-hard size-small-size-hard" alt="" srcset="https://darro18.com/wp-content/uploads/2019/04/velazquez-axon-385x385.jpg 385w, https://darro18.com/wp-content/uploads/2019/04/velazquez-axon-150x150.jpg 150w" sizes="(max-width: 385px) 100vw, 385px" /></a>

<p>The post <a href="https://darro18.com/es/portfolio/vinoteca/">Velazquez</a> appeared first on <a href="https://darro18.com/es">darro18 arquitectos</a>.</p>
]]></content:encoded>
					
		
		
			</item>
		<item>
		<title>Bobbi Brown</title>
		<link>https://darro18.com/es/portfolio/bobbi-brown/</link>
		
		<dc:creator><![CDATA[admin9493]]></dc:creator>
		<pubDate>Tue, 06 Jun 2017 15:23:06 +0000</pubDate>
				<guid isPermaLink="false">http://darro18.com/?post_type=mies_portfolio&#038;p=1702/</guid>

					<description><![CDATA[<p>MEMORIA DEL PROYECTO La tienda de BOBBI BROWN se sitúan en la planta baja de un edificio de viviendas de 1898 del Ensanche de Bilbao, respetando los elementos arquitectónicos del edificio, como el almohadillado del zócalo. Galería</p>
<p>The post <a href="https://darro18.com/es/portfolio/bobbi-brown/">Bobbi Brown</a> appeared first on <a href="https://darro18.com/es">darro18 arquitectos</a>.</p>
]]></description>
										<content:encoded><![CDATA[<h3 style="text-align: center;">MEMORIA DEL PROYECTO</h3>
<p class="intro narrow not-big" style="text-align: center;"><span style="font-size: 12pt;">La tienda de BOBBI BROWN se sitúan en la planta baja de un edificio de viviendas de 1898 del Ensanche de Bilbao, respetando los elementos arquitectónicos del edificio, como el almohadillado del zócalo.</span></p>
<p class="intro narrow not-big" style="text-align: center;"><img loading="lazy" decoding="async" class="aligncenter wp-image-1107 size-medium" src="https://darro18.com/wp-content/uploads/2017/01/bobbi-brown-floorplan.jpg" width="500" height="385" srcset="https://darro18.com/wp-content/uploads/2017/01/bobbi-brown-floorplan.jpg 1746w, https://darro18.com/wp-content/uploads/2017/01/bobbi-brown-floorplan-300x231.jpg 300w, https://darro18.com/wp-content/uploads/2017/01/bobbi-brown-floorplan-768x591.jpg 768w, https://darro18.com/wp-content/uploads/2017/01/bobbi-brown-floorplan-1024x788.jpg 1024w, https://darro18.com/wp-content/uploads/2017/01/bobbi-brown-floorplan-1536x1182.jpg 1536w, https://darro18.com/wp-content/uploads/2017/01/bobbi-brown-floorplan-1200x924.jpg 1200w, https://darro18.com/wp-content/uploads/2017/01/bobbi-brown-floorplan-800x616.jpg 800w, https://darro18.com/wp-content/uploads/2017/01/bobbi-brown-floorplan-385x296.jpg 385w" sizes="(max-width: 500px) 100vw, 500px" /></p>
<div class="separator">
<h3>Galería</h3>
</div>

<a data-title="Jo Malone - Bobbi Brown 1" data-alt=""data-video_autoplay="off"href='https://darro18.com/es/portfolio/jo-malone-bobbi-brown/160329-gahona-jo-malone-bobbi-brown-001_ps-2/'><img loading="lazy" decoding="async" width="257" height="385" src="https://darro18.com/wp-content/uploads/2017/01/jo-malone-bobbi-brown-1.jpg" class="attachment-small-size-hard size-small-size-hard" alt="" /></a>
<a data-title="Bobbi Brown 2" data-alt=""data-video_autoplay="off"href='https://darro18.com/es/portfolio/jo-malone-bobbi-brown/160329-gahona-jo-malone-bobbi-brown-003_photoshop-2/'><img loading="lazy" decoding="async" width="385" height="257" src="https://darro18.com/wp-content/uploads/2017/01/bobbi-brown-2.jpg" class="attachment-small-size-hard size-small-size-hard" alt="" /></a>
<a data-title="Bobbi Brown 3" data-alt=""data-video_autoplay="off"href='https://darro18.com/es/portfolio/jo-malone-bobbi-brown/160329-gahona-jo-malone-bobbi-brown-019-2/'><img loading="lazy" decoding="async" width="372" height="385" src="https://darro18.com/wp-content/uploads/2017/01/bobbi-brown-3.jpg" class="attachment-small-size-hard size-small-size-hard" alt="" /></a>
<a data-title="Bobbi Brown 4" data-alt=""data-video_autoplay="off"href='https://darro18.com/es/portfolio/jo-malone-bobbi-brown/160329-gahona-jo-malone-bobbi-brown-021-2/'><img loading="lazy" decoding="async" width="257" height="385" src="https://darro18.com/wp-content/uploads/2017/01/bobbi-brown-4.jpg" class="attachment-small-size-hard size-small-size-hard" alt="" /></a>
<a data-title="Bobbi Brown 5" data-alt=""data-video_autoplay="off"href='https://darro18.com/es/portfolio/jo-malone-bobbi-brown/160329-gahona-jo-malone-bobbi-brown-030-2/'><img loading="lazy" decoding="async" width="257" height="385" src="https://darro18.com/wp-content/uploads/2017/01/bobbi-brown-5.jpg" class="attachment-small-size-hard size-small-size-hard" alt="" /></a>

<p>The post <a href="https://darro18.com/es/portfolio/bobbi-brown/">Bobbi Brown</a> appeared first on <a href="https://darro18.com/es">darro18 arquitectos</a>.</p>
]]></content:encoded>
					
		
		
			</item>
		<item>
		<title>Jo Malone</title>
		<link>https://darro18.com/es/portfolio/jo-malone-bobbi-brown/</link>
		
		<dc:creator><![CDATA[admin9493]]></dc:creator>
		<pubDate>Tue, 06 Jun 2017 13:36:33 +0000</pubDate>
				<guid isPermaLink="false">http://darro18.com/?post_type=mies_portfolio&#038;p=1697/</guid>

					<description><![CDATA[<p>MEMORIA DEL PROYECTO La tienda de JO MALONE se sitúan en la planta baja de un edificio de viviendas de 1898 del Ensanche de Bilbao, respetando los elementos arquitectónicos del edificio, como el almohadillado del zócalo. &#160; Galería</p>
<p>The post <a href="https://darro18.com/es/portfolio/jo-malone-bobbi-brown/">Jo Malone</a> appeared first on <a href="https://darro18.com/es">darro18 arquitectos</a>.</p>
]]></description>
										<content:encoded><![CDATA[<h3 style="text-align: center;">MEMORIA DEL PROYECTO</h3>
<p class="intro narrow not-big" style="text-align: center;"><span style="font-size: 12pt;">La tienda de JO MALONE se sitúan en la planta baja de un edificio de viviendas de 1898 del Ensanche de Bilbao, respetando los elementos arquitectónicos del edificio, como el almohadillado del zócalo.</span></p>
<p class="intro narrow not-big" style="text-align: center;"><img loading="lazy" decoding="async" class="aligncenter wp-image-1108 size-medium" src="https://darro18.com/wp-content/uploads/2017/01/jo-malone-floorplan.jpg" width="500" height="385" srcset="https://darro18.com/wp-content/uploads/2017/01/jo-malone-floorplan.jpg 1746w, https://darro18.com/wp-content/uploads/2017/01/jo-malone-floorplan-300x231.jpg 300w, https://darro18.com/wp-content/uploads/2017/01/jo-malone-floorplan-768x591.jpg 768w, https://darro18.com/wp-content/uploads/2017/01/jo-malone-floorplan-1024x788.jpg 1024w, https://darro18.com/wp-content/uploads/2017/01/jo-malone-floorplan-1536x1182.jpg 1536w, https://darro18.com/wp-content/uploads/2017/01/jo-malone-floorplan-1200x924.jpg 1200w, https://darro18.com/wp-content/uploads/2017/01/jo-malone-floorplan-800x616.jpg 800w, https://darro18.com/wp-content/uploads/2017/01/jo-malone-floorplan-385x296.jpg 385w" sizes="(max-width: 500px) 100vw, 500px" /></p>
<p>&nbsp;</p>
<div class="separator">
<h3>Galería</h3>
</div>

<a data-title="Jo Malone - Bobbi Brown 1" data-alt=""data-video_autoplay="off"href='https://darro18.com/es/portfolio/jo-malone-bobbi-brown/160329-gahona-jo-malone-bobbi-brown-001_ps-2/'><img loading="lazy" decoding="async" width="257" height="385" src="https://darro18.com/wp-content/uploads/2017/01/jo-malone-bobbi-brown-1.jpg" class="attachment-small-size-hard size-small-size-hard" alt="" /></a>
<a data-title="Jo Malone 2" data-alt=""data-video_autoplay="off"href='https://darro18.com/es/portfolio/jo-malone-bobbi-brown/160329-gahona-jo-malone-bobbi-brown-012-2/'><img loading="lazy" decoding="async" width="385" height="380" src="https://darro18.com/wp-content/uploads/2017/01/jo-malone-2.jpg" class="attachment-small-size-hard size-small-size-hard" alt="" /></a>
<a data-title="Jo Malone 3" data-alt=""data-video_autoplay="off"href='https://darro18.com/es/portfolio/jo-malone-bobbi-brown/160329-gahona-jo-malone-bobbi-brown-036-2/'><img loading="lazy" decoding="async" width="385" height="385" src="https://darro18.com/wp-content/uploads/2017/01/jo-malone-3-e1534871880211-385x385.jpg" class="attachment-small-size-hard size-small-size-hard" alt="" srcset="https://darro18.com/wp-content/uploads/2017/01/jo-malone-3-e1534871880211-385x385.jpg 385w, https://darro18.com/wp-content/uploads/2017/01/jo-malone-3-e1534871880211-150x150.jpg 150w, https://darro18.com/wp-content/uploads/2017/01/jo-malone-3-e1534871880211-300x300.jpg 300w, https://darro18.com/wp-content/uploads/2017/01/jo-malone-3-e1534871880211-1200x1196.jpg 1200w, https://darro18.com/wp-content/uploads/2017/01/jo-malone-3-e1534871880211-800x797.jpg 800w, https://darro18.com/wp-content/uploads/2017/01/jo-malone-3-e1534871880211.jpg 2000w" sizes="(max-width: 385px) 100vw, 385px" /></a>
<a data-title="Jo Malone 4" data-alt=""data-video_autoplay="off"href='https://darro18.com/es/portfolio/jo-malone-bobbi-brown/160329-gahona-jo-malone-bobbi-brown-041-2/'><img loading="lazy" decoding="async" width="347" height="385" src="https://darro18.com/wp-content/uploads/2017/01/jo-malone-4.jpg" class="attachment-small-size-hard size-small-size-hard" alt="" /></a>
<a data-title="Jo Malone 5" data-alt=""data-video_autoplay="off"href='https://darro18.com/es/portfolio/jo-malone-bobbi-brown/160329-gahona-jo-malone-bobbi-brown-058-2/'><img loading="lazy" decoding="async" width="257" height="385" src="https://darro18.com/wp-content/uploads/2017/01/jo-malone-5.jpg" class="attachment-small-size-hard size-small-size-hard" alt="" /></a>

<p>The post <a href="https://darro18.com/es/portfolio/jo-malone-bobbi-brown/">Jo Malone</a> appeared first on <a href="https://darro18.com/es">darro18 arquitectos</a>.</p>
]]></content:encoded>
					
		
		
			</item>
		<item>
		<title>MAC (Preciados)</title>
		<link>https://darro18.com/es/portfolio/mac-preciados/</link>
		
		<dc:creator><![CDATA[admin9493]]></dc:creator>
		<pubDate>Tue, 06 Jun 2017 13:34:29 +0000</pubDate>
				<guid isPermaLink="false">http://darro18.com/?post_type=mies_portfolio&#038;p=1696/</guid>

					<description><![CDATA[<p>MEMORIA DEL PROYECTO La nueva tienda para MAC se ubica en la Calle Preciados, junto a la Puerta del Sol, probablemente la zona comercial más popular de Madrid. Adaptándose a la Normativa Municipal y a los requerimientos de la marca, el proyecto aprovecha al máximo la superficie del local para la correcta exposición y venta..</p>
<p>The post <a href="https://darro18.com/es/portfolio/mac-preciados/">MAC (Preciados)</a> appeared first on <a href="https://darro18.com/es">darro18 arquitectos</a>.</p>
]]></description>
										<content:encoded><![CDATA[<h3 style="text-align: center;">MEMORIA DEL PROYECTO</h3>
<p class="intro narrow not-big" style="text-align: center;"><span style="font-size: 12pt;">La nueva tienda para MAC se ubica en la Calle Preciados, junto a la Puerta del Sol, probablemente la zona comercial más popular de Madrid. Adaptándose a la Normativa Municipal y a los requerimientos de la marca, el proyecto aprovecha al máximo la superficie del local para la correcta exposición y venta de los productos de cosmética MAC.</span></p>
<div class="separator">
<h3>Galería</h3>
</div>

<a data-title="MAC-Preciados 1" data-alt=""data-video_autoplay="off"href='https://darro18.com/es/portfolio/mac-preciados/141120-pepe-gahona-mac-madrid-001-retocada-2/'><img loading="lazy" decoding="async" width="385" height="261" src="https://darro18.com/wp-content/uploads/2017/01/mac-preciados-1.jpg" class="attachment-small-size-hard size-small-size-hard" alt="" /></a>
<a data-title="MAC-Preciados 2" data-alt=""data-video_autoplay="off"href='https://darro18.com/es/portfolio/mac-preciados/141120-pepe-gahona-mac-madrid-006-2/'><img loading="lazy" decoding="async" width="385" height="366" src="https://darro18.com/wp-content/uploads/2017/01/mac-preciados-2.jpg" class="attachment-small-size-hard size-small-size-hard" alt="" /></a>
<a data-title="MAC-Preciados 3" data-alt=""data-video_autoplay="off"href='https://darro18.com/es/portfolio/mac-preciados/141120-pepe-gahona-mac-madrid-011-retocada-2/'><img loading="lazy" decoding="async" width="383" height="385" src="https://darro18.com/wp-content/uploads/2017/01/mac-preciados-3.jpg" class="attachment-small-size-hard size-small-size-hard" alt="" /></a>
<a data-title="MAC-Preciados 4" data-alt=""data-video_autoplay="off"href='https://darro18.com/es/portfolio/mac-preciados/141120-pepe-gahona-mac-madrid-013-retocada-2/'><img loading="lazy" decoding="async" width="385" height="312" src="https://darro18.com/wp-content/uploads/2017/01/mac-preciados-4.jpg" class="attachment-small-size-hard size-small-size-hard" alt="" /></a>
<a data-title="MAC-Preciados 5" data-alt=""data-video_autoplay="off"href='https://darro18.com/es/portfolio/mac-preciados/141120-pepe-gahona-mac-madrid-016-retocada-2/'><img loading="lazy" decoding="async" width="385" height="257" src="https://darro18.com/wp-content/uploads/2017/01/mac-preciados-5.jpg" class="attachment-small-size-hard size-small-size-hard" alt="" /></a>

<p>The post <a href="https://darro18.com/es/portfolio/mac-preciados/">MAC (Preciados)</a> appeared first on <a href="https://darro18.com/es">darro18 arquitectos</a>.</p>
]]></content:encoded>
					
		
		
			</item>
	</channel>
</rss>
